Zapojení otáčkoměru
Moderátor: Blue Lanos
Zapojení otáčkoměru
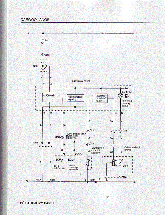
Zdravím, chtěl bych se optat na pár věcí mám Daweoo Lanos 1,5 63kw (1999) asi tu nejchudší verzi a není tam otáčkoměr, a ten chci dokoupit jen bych potřeboval radu kam ho zapojit. Četl jsem někde že je volný kábl a na to se to zapojí no, díval jsem se a vespod pod palubovkou a je tam jeden volný drát potom jedna volná přípojka cca pro 8 konektorů a víc sem nenašel. Prosil bych o třeba detailnější fotku na který kabel zapojit otáčkoměr. Předem díky za rady.
- Reklama
Re: Zapojení otáčkoměru
Skus tam dat original pristrojovku s otackomerom.
ex EVANDA, strieborná metalíza svetlá,
LPG BRC sequent 24
Automatické zapínanie svetiel, cúvacie senzory.
ex ESPERO strieborná metalíza.
ex ESPERO modrá metalíza.
DAEWOO MERCEDES McLAREN
LPG POZITIVE.
EGR NEGATIVE.
Diagnostika Autel Maxidiag univerzal.
LPG BRC sequent 24
Automatické zapínanie svetiel, cúvacie senzory.
ex ESPERO strieborná metalíza.
ex ESPERO modrá metalíza.
DAEWOO MERCEDES McLAREN
LPG POZITIVE.
EGR NEGATIVE.
Diagnostika Autel Maxidiag univerzal.
Re: Zapojení otáčkoměru
Nechci dávat přistrojovku ale přidavný budík.
- LordMMX
- Příspěvky: 1588
- Registrován: ned úno 20, 2011 05:06
- Bydliště: Halič /SVK/
- Kontaktovat uživatele:
Re: Zapojení otáčkoměru
vyser sa na farbičky to je prva vec... prvy prispevok prečítať bola katastrofa....
čo sa lanosu tyka. kup pristrojovku aj s otáčkomerom a iba ich prehoď kus za kus. nemusíš vymýšľať nič s voľným káblikom ... a pristrojovky s otáčkomerom stoja 20 euro....
čo sa lanosu tyka. kup pristrojovku aj s otáčkomerom a iba ich prehoď kus za kus. nemusíš vymýšľať nič s voľným káblikom ... a pristrojovky s otáčkomerom stoja 20 euro....
Daewoo Lacetti Premiere 2011 (Cruze)
Daewoo Leganza "Areum" CDX 2.0, central + alarm, el. okna, digi klima, dualbag, ABS/TCS
Daewoo nie je len značka... je to životný štýl !! :)
ex: Leganza, 2x Evanda, Lanos, Corsa, Nexia, Espero, Marea
Daewoo Leganza "Areum" CDX 2.0, central + alarm, el. okna, digi klima, dualbag, ABS/TCS
Daewoo nie je len značka... je to životný štýl !! :)
ex: Leganza, 2x Evanda, Lanos, Corsa, Nexia, Espero, Marea
Re: Zapojení otáčkoměru
Peter ale on nechce novu pristrojovku, ale samostatny budik.LordMMX píše: čo sa lanosu tyka. kup pristrojovku aj s otáčkomerom a iba ich prehoď kus za kus. nemusíš vymýšľať nič s voľným káblikom ... a pristrojovky s otáčkomerom stoja 20 euro....
Ja osobne, keby som chcel otackomer do auta, tak by som isiel jednoduhsou cestou a vymenil by som radsej pristrojovku ako tahat kable k tuning otackomeru. (plus, minus, osvetlenie, signal)
Takze ak ti mozem poradit, pozhanaj si schemu zapojenia pristrojovky, najdi prislusny konektor a zapoj si to na samostatny budik.
ex EVANDA, strieborná metalíza svetlá,
LPG BRC sequent 24
Automatické zapínanie svetiel, cúvacie senzory.
ex ESPERO strieborná metalíza.
ex ESPERO modrá metalíza.
DAEWOO MERCEDES McLAREN
LPG POZITIVE.
EGR NEGATIVE.
Diagnostika Autel Maxidiag univerzal.
LPG BRC sequent 24
Automatické zapínanie svetiel, cúvacie senzory.
ex ESPERO strieborná metalíza.
ex ESPERO modrá metalíza.
DAEWOO MERCEDES McLAREN
LPG POZITIVE.
EGR NEGATIVE.
Diagnostika Autel Maxidiag univerzal.
Re: Zapojení otáčkoměru
Signál pre otáčkomer je generovaný priamo ECU a ani srnka netuší či je to PWM,strieda,ΔU alebo magic smoke.
Hyundai Matrix 1.5 CRDI VGT 130kkm
Lanos 1.6 16V 2003 čistokrvný korejčan 140 kkm
Lanos 1.5 2001 5door HB BRIGHTON GOLG + KYB -predaný pri 208kkm
185/60 R14 Dunlop SP + PLW B700 na lanoska na predaj http://www.autobazar.eu/sk/plw-b700-id7307585.html
Lanos 1.6 16V 2003 čistokrvný korejčan 140 kkm
Lanos 1.5 2001 5door HB BRIGHTON GOLG + KYB -predaný pri 208kkm
185/60 R14 Dunlop SP + PLW B700 na lanoska na predaj http://www.autobazar.eu/sk/plw-b700-id7307585.html
Re: Zapojení otáčkoměru
Kedze typek planuje montaz doplnkoveho otackomera, je podstatne akym signalom je ovladany ten dodatocny otackomer. Vacsinou slo o prerusovany signal z rozdelovaca resp z indukcnej cievky. Treba najprv vidiet co tam vlastne planuje domontovat a potom premyslat ako a ci vobec to je mozne.
Daewoo Lanos 1,5 63kW 1998 HB-5Dv, 27U - uplne bez vybavy (bez kurvitok).
Re: Zapojení otáčkoměru
Díky za schématický vzoreček.